Boulens

01.6.1 Favre plan scaled 1

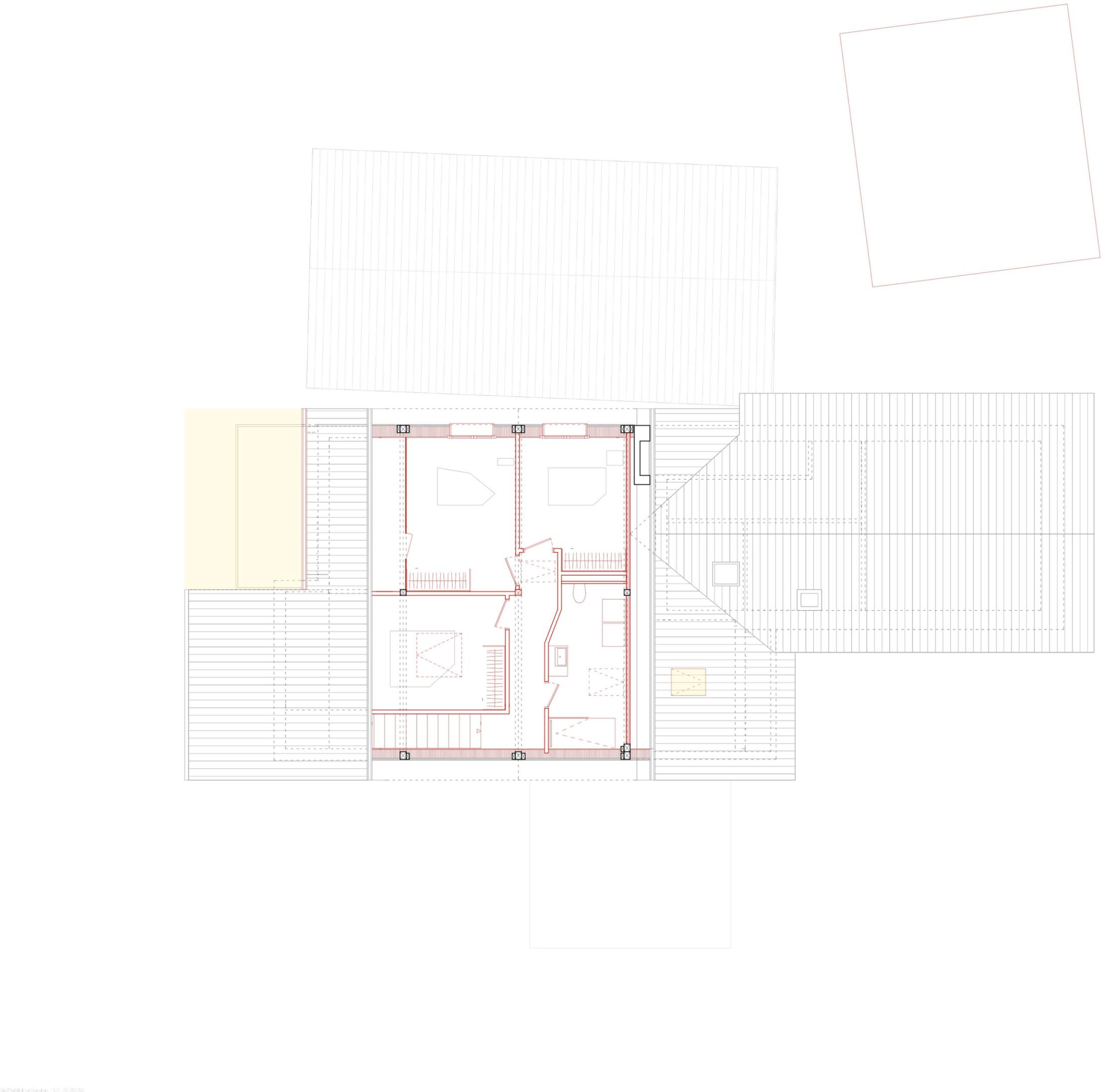
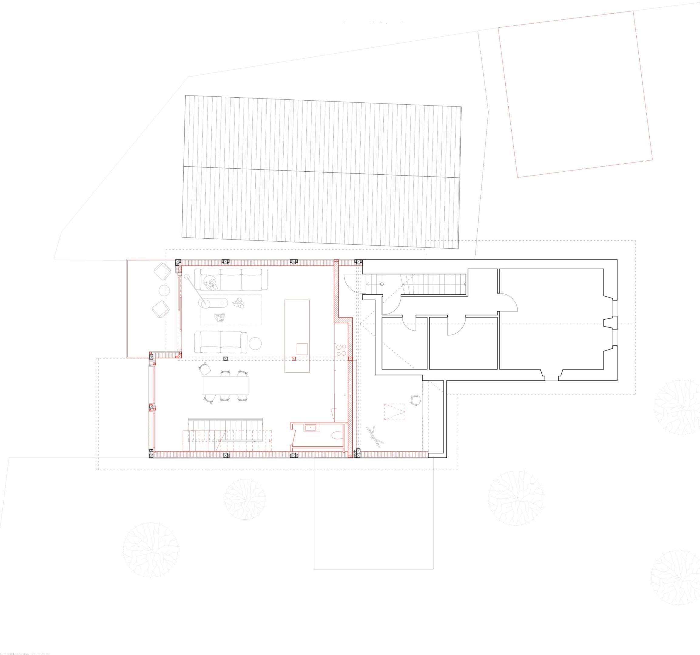
Création d'un logement de 4,5 pièces, Boulens (VD), 2020

Transformation d’une grange en un nouveau logement, aménagé au sein d’une construction déjà existante. Le rez-de-chaussée abritant actuellement un garage est réaménagé et devient l’accès à ce nouveau logement. Les pièces de vie et de nuit se situent dans la grange actuellement inoccupée située à l’étage de la construction. Cette grange bénéficiant d’une très haute hauteur sous plafond permet la création d’un étage supplémentaire qui abrite les chambres. Direction de travaux uniquement.