Dompierre

01.11.3 Plan masse domp

Transformation d’une ancienne auberge en trois logements mitoyens, (FR), 2024

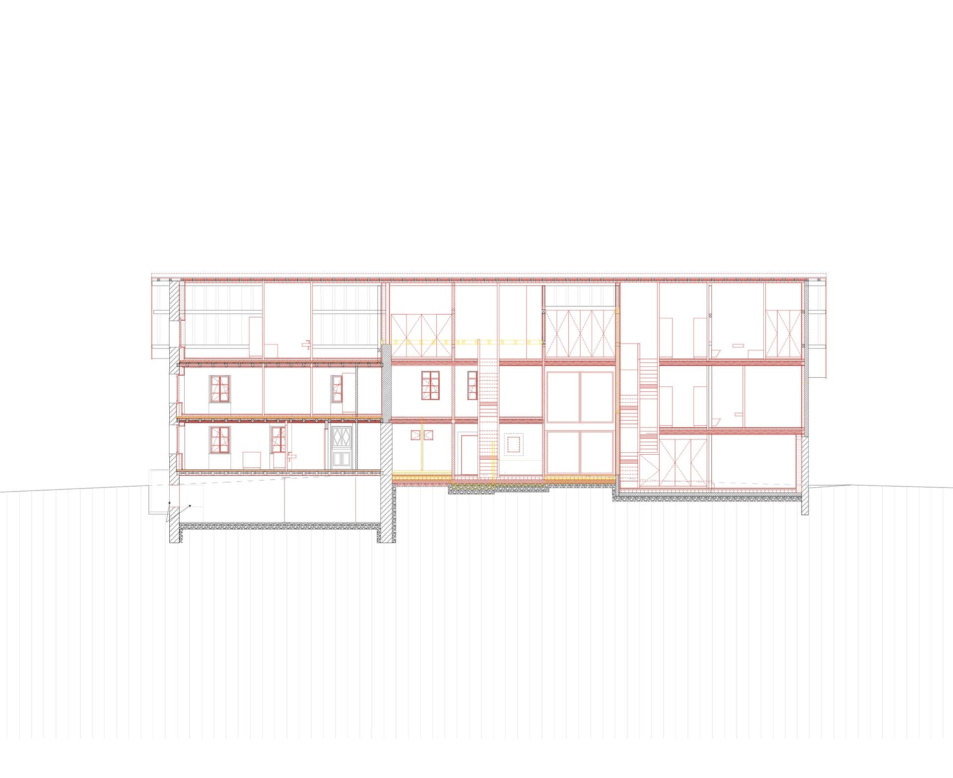
Ce projet concerne le changement d’affectation et la transformation intérieure du Relai du Lion-d’Or, une ancienne auberge datant du dernier quart du XIXe siècle. Le bâtiment principal et son bûcher seront reconvertis en trois habitations mitoyennes. L’annexe moderne à toiture plate sera démolie, afin de restituer la cohérence architecturale d’origine de l’ensemble. L’organisation intérieure respecte la trame spatiale historique, tout en adaptant les typologies aux usages actuels. Les nouvelles structures intérieures s’intègrent avec cohérence, en ossature bois ou brique pour les éléments verticaux, et dalles mixtes pour les planchers. Les interventions extérieures sont limitées et sensibles : les percements sont majoritairement conservés, les fenêtres reprennent le langage d’origine (menuiseries brun bois à petits bois), et les éléments techniques (panneaux solaires) sont dissimulés sur la toiture côté jardin. Chaque lot dispose d’un jardin privatif et de places de stationnement, intégrées discrètement dans le site. Le portail de la grange est conservé en l’état et devient un filtre visuel pour préserver l’intimité.

Lieu

Dompierre

Programme

Changement d’affectation d’une auberge en 3 logements mitoyens

Statut

En procédure d’autorisation (Mise à l’enquête déposée)

Phases SIA

21 à 32 – Étude de faisabilité à avant-projet / Mise à l’enquête

Particularités

Patrimoine bâti, trame conservée, intervention mesurée, intégration énergétique et typologique

Collaborateur(s)

Kevin Tarralheiro